Лебедки монтажные ручные моделей GR и VS предназначены для ручного подъема и перемещения грузов с намоткой металлического каната (троса) на барабан. В качестве приводного механизма на лебедках модели GR используется редуктор с цилиндрическими прямозубыми шестернями, на лебедках модели VS используется червячная пара.
Лебедки тяговые ручные модели Т предназначены для перемещения груза, при использовании лебедок модели Т для подъема, необходимо помнить, что грузоподъемность данной серии равна 75% от тягового усилия.
Лебедки не предназначены для подъема и перемещения людей.
Лебедки не предназначены для работы в пожаро- и взрывоопасных зонах.
Температура окружающей среды от -20 до +40 град. С.
Допускается эксплуатация лебедок на открытом воздухе. При попадании влаги по окончании работы протереть открытые от смазки места лебедки сухой салфеткой.
|
Наименование/ Модель |
VS 1000 |
|
Тяговое усилие, кг |
1000 |
|
Канатоемкость, м |
9 |
|
Количество слоев |
35 |
|
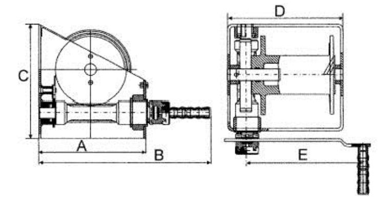
Размеры мм |
|
|
A |
300 |
|
B |
490 |
|
C |
300 |
|
D |
300 |
|
E |
370 |
|
Вес, кг |
41 |
|
Скорость навивки, м/мин |
1 |
Получить подробную консультацию и просчитать точную стоимость заказа Вы можете по телефону +7 (863) 209-88-44
